Wie können Sie ihr Wohnzimmer vergrößern?... Wie kommt der Garten ins Haus?
Sie können eine ganze Wand in die Patio HS Tür verwandeln!
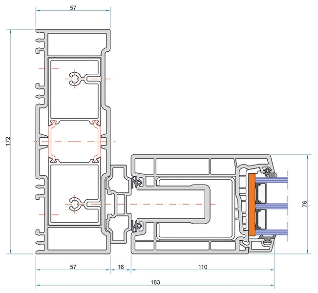
Die schwere Hebe-Schiebetür HST PVC ist die höchst fortgeschrittene Entwicklung die es Ihnen ermöglicht große warme Glasflächen in Zusammenhang mit der flachen warmen Aluschwelle (nur 19mm) einzubauen.
Der Garten kommt ins Haus...

Eigenschaften:

•  Technologie: die flache warme Aluschwelle mit nur 19mm Höhe (Behindertengerecht DIN 18025)

Als Basis der Patio HST dient das PVC Profilsystem von SALAMANDER der Klasse A, die SUPERthermo Verglasung und der perfekte Beschlag von SIEGENIA-AUBI erlaubt es Ihnen bis 300 kg schwere Flügel leicht zu verschieben.
•  Sicherheit: aufgrund der hohen Eigenmasse und Verriegelung bildet der geschlossene Flügel eine Barriere      gegen Einbrecher, Wind und Regen. Der HST Flügel ist auch während der Mikroventilation vollständig      verriegelt und liegt auf der Schwelle.
hst_sopot_lightbox.jpg ogrod2_lightbox.jpg ogrod1_lightbox.jpg hst_chlopiec_s_lightbox.jpg hst_okienka_lightbox.png z1_1_lightbox.jpg z2_1_lightbox.jpg z3_1_lightbox.jpg n1_1_hst_lightbox.jpg n1_2_hst_lightbox.jpg n1_3_hst_lightbox.jpg n1_4_hst_lightbox.jpg n2_1_hst_lightbox.jpg n2_2_hst_lightbox.jpg n2_3_hst_lightbox.jpg n2_4_hst_lightbox.jpg d1_1_hst_lightbox.jpg d1_2_hst_lightbox.jpg d1_4_hst_lightbox.jpg d1_5_hst_lightbox.jpg cieply_niski_prog_lightbox.jpg hst2_lightbox.jpg hst5_lightbox.jpg hst4_lightbox.jpg
•  Thermik: Uw = 0,8 W/m²K dank den neusten Lösungen wie: die SUPERthermo Verglasung, die flache warme     Aluschwelle und die warmen Verstärkungen im Rahmen.
rama_z_cieplym_wzmocnieniem_lightbox.jpg cieple_wzmocnienia_w_ramie_lightbox.jpg
•  Design: imponierende Größen, die für andere PVC Konstruktionen nicht erreichbar sind, 30 verschiedene      Holz ähnelnde Farbfolien und spezielle wie z.B. gebürstetes Aluminium.
Farben
•  Bearbeitung: ein spezielles Unterbausystem das die Montage erleichtert , eine einzigartige Technologie der      Rahmenverbindung erlaubt es große Konstruktionen in Teilen zu Transportieren damit die ganze Tür auf der      Baustele zusammengesetzt werden kann.
szyna_montazowa_de_lightbox.jpg
•  Zusätzliche Möglichkeiten: beidseitiger Handhebel mit Schloss und Systeme für eine komfortable Bedienung,      ein erstaunliches automatisiertes Elektromotorsystem mit Funksteuerung, in das man schon eingebaute      HST ausstatten kann, oder zielgerichtete Verglasungen die das aufwärmen von Räumen im Sommer      einschränken.
Schema:
Patio HST kann man in folgenden Schemen ausführen:
•  Schema A
hst_schemat_a_lightbox.jpg
•  Schema C
hst_schemat_c_lightbox.jpg
Mögliche Ausführungen:
Die maximalen Außenmaße der Patio HST sind von verschiedenen Faktoren abhängig – vor allem von der Farbe (die Verwendung von Folien beeinflusst die max. Außenmaße) und von dem Gewicht der Flügel (die Gesamtmasse darf nicht 300 Kg überschreiten, was im Fall der Sicherheitsverglasung leicht zu erreichen ist), aber auch wegen der Höhe ü.d.M. und auch Lage der Konstruktion wegen dem Windwiederstand. Das Patio HST im Schema C kann bis 6 m breit und 2,5 m hoch ausgeführt werden.
Für größere und mehr komplizierte Konstruktionen empfehlen wir Ihnen die warme Patio HST Ausführung in Aluminium MB77HS.
System MB-77HS
MB-77HS_de.pdf
Thermische Parameter des Patio HST PVC
Dank der SUPERthermo Verglasung, der flachen warmen Aluschwelle und der warmen Verstärkung im Rahmen – hat ein Standard Patio HST im A Schema von einer Höhe 2,4 m und Breite 5,6 m mit der SUPERthermo 0,5 W/m²K mit dem Edgetech Super Spacer einen Wärmedurchgangskoeffizient von Uw=0,8 W/m²K.
Standardausstattung der Patio HST:
•  Die warme flache Aluschwelle
•  Die warmen Verstärkungen im Rahmen
•  Die 4-Punkt Verriegelung mit Mikroventilation
•  Die Doppelverglasung 1,0 W/m²K (4-16 Argon-4 Thermo) oder für größere Maße (6-16 Argon-6 Thermo) mit      Stahlabstandshalter
•  Die HST Handhebel in weiß oder braun. Wir empfehlen ihnen den neuen HST Handhebel aus Edelstahl, der      jetzt im Sonderangebot ist (ohne Aufpreis)
klamka_hst_bial_braz_lightbox.jpg klamka_inox_lightbox.jpg
•  Der Anschlagpuffer auf dem Rahmen befestigt und ohne Aussengriff damit der aktive Flügel sich mit dem      passivem verdeckt für maximales Durchgangslicht
•  Die Farben der Ausstattung: für weiße HST ist der Handhebel: weiß oder Edelstahl; die Schwelle,      Führungsschienen und Zentralleisten – anodisiertes Silber EV1; Schwellenprofil- grau RAL7040; Dichtung      – Schwarz, und für Farbige HST ist der Handhebel: braun oder Edelstahl; die Schwelle, Führungsschienen      und Zentralleisten – anodisiertes Silber EV1; Schwellenprofil- grau RAL7040; Dichtung – Schwarz
Optionale Ausstattung der Patio HST:
•  Die Dreifachverglasung SUPERtermo 0,5 W/m²K
•  Die warmen Abstandshalter Edgetech Super Spacer
•  Die Antieinbruch Verglasung, Sicherheitsglas oder gehärtetes ESG
•  Die selektiven Gläser für Einschränkung der Sonnenstrahlung
•  Die verschiedenen Farben der Handhebel: Silber EV1,"Alt Gold" C33 oder bemahlt auf RAL 1036 wie altes      Gold oder Titan F9
klamka_hst_zestaw_opcja_lightbox.jpg
•  Die Handhebel einseitig oder beidseitig zum abschließen (Profilzylinder mit Attest)
klamki_wkladka_pochwyt_lightbox.jpg klamki_wkladka_pochwyt_inox_lightbox.jpg
•  Die Schiebetürgriffe in den Farben wie Türhebel
•  Die Schwelle in Dunkelbraun
•  Die Schwellenverbreiterung um 25 mm
•  Die Montageschiene, für eine einfache Montage die Garantie für einen langjährigen und problemlosen Nutz
•  Der Komfortbeschlag mit Federmechanismus für eine einfachere Hebelbedienung bei schweren Flügeln
•  Die einstellbaren Wagen, die eventuelle Montagefehler korrigieren können
Die meist fortgeschrittene Ausstattung für die Patio HST ist das Elektromotorsystem mit Funksteuerung und Elektro-Olive.
Der Elektromotor MHS400 – Schwere Flügel – Leichte Bedienung
hst_sterowanie_pilotem_lightbox.jpg
Haben Sie keine Lust sich von der Couch zu bewegen um in den Garten zu gehen? Kein Problem! Jetzt kommt der Garten ins Haus und Sie können ihm die Tür öffnen... mit einer Funksteuerung. Das einzigartiges Automatikgetriebe für ein- oder zweiflügelige Hebe-Schiebetüren - MHS400 erlaubt es bis zu 400 kg schwere Flügel zu bewegen. Zusätzliche Funktionen: Zeitprogrammierte Mikroventilation mit einstellbarer Öffnungsbreite. Modernes Design und geringe Größe der Steuerung passen sich in jeden Innenraum ein. Eine zusätzlicher Vorteil ist die einfache Montage auch in schon eingebaute Türen. Die Qualität wurde von TÜV geprüft.
Inteligente Lösung:
•  entsprechend für jede Art von Material aus dem die HST ausgeführt ist: PVC, Holz oder Aluminium
•  "Saubere" Montage – ohne Fräse oder Putz
•  Öffnet, schließt und verriegelt sich automatisch  
•  Dank der Sensoren nach Hinderniserkennung der Flügel wird automatisch angehalten
•  Infrarot Fernbedienung
•  Plug&Play Installierung : auspacken, anschrauben und fertig
•  Die Elektro-Arbeiten beschränken sich nur auf den Steckeranschluss
•  einfache Wartung
Fa. Konsta GmbH behält sich das Recht vor, die technischen Änderungen der Produkte einzuführen, ohne danach zuvor zu benachrichtigen.